
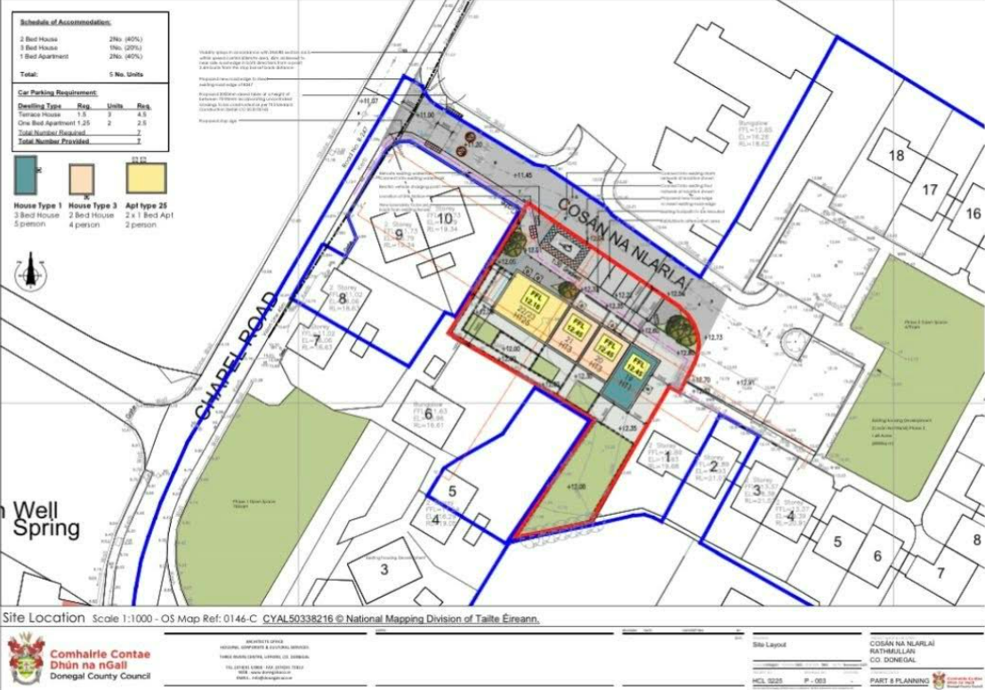
Part 8 planning has been granted today for five Council houses at Cosan na nIarlaí, Rathmullan, consisting of two one-bed, two two- bed and one three- bed units.
The decision was taken at a special housing meeting, which was told progress continues to be made on the council’s social housing programme.
The go ahead for the five houses in Rathmullan today follows approval for four social homes in Laghey at the end of January.
Members were told that progress continues to be made on the council’s social housing plans.
Following a tender process, letters have gone put in relation to the old fire station in Stranorlar, with hopes that the works will be started by the end of next month.
The meeting was told that a number of other projects which have been approved are about to go to tender.
They include a 10 unit scheme in Newtowncunningham, a 14 unit scheme at Oldtown in Letterkenny and a 17 unit scheme in Derrybeg. Meanwhile, tender documents for a 12 unit scheme in Milford are being finalised.
Members were told that of the council’s overall plan, 403 social homes have been completed and 466 are on site, with 266 at the dialogue stage.
